|
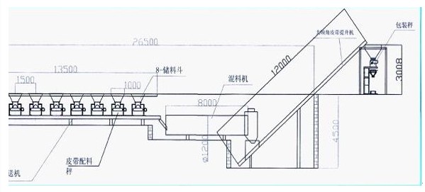
This production line consists of raw material storing system → screw feeding equipment → batching bucket metering → mixing equipment → finished product conveying equipment → automatic packaging equipment.
By this form of production line, batching part and mixing part of the system integrally installed under the ground, effectively saving space. And covers a small area, convenient and fast ground feeding, safe operation. High mixing uniformity, effectively reduce workers labor. Small dust and strong adaptability, it is suitable for a variety of harsh on-sit environment. The highest precision domestically, reaching 0.2%.
|